JGD型双球体可曲挠橡胶接头
nbsp;nbsp;nbsp; 可曲挠双球橡胶接头又称作橡胶软连接、橡胶弹性接头、管道减震器、避震喉、软接头、减振器等。是一种高弹性、高气密性,耐介质性和耐气候性的管道接头,可曲挠橡胶接头有单球橡胶接头、双球橡胶接头、异径橡胶接头。它的性能特点有:1、可曲挠双球橡胶接头体积小、重量轻、弹性好、安装维修方便。
nbsp;2、可曲挠双球橡胶接头安装时可产生横向、轴向、角向位移,不受管道不通心,法兰不平行的限制。
3、可曲挠双球橡胶接头工作时可降低结构传递噪音,吸振能力强。
可曲挠橡胶接头基本参数
产品型号:JGD
产品名称:双球体可曲挠橡胶接头
公称通径:DN32mmamp;mdash;DN2200mm
适用压力:0.6Mpa、1.0Mpa、1.6Mpa
适用介质:空气、压缩空气、水、海水、热水、酸、碱等化学物质
适用温度:-15摄氏度~115摄氏度之间
连接方式:法兰连接
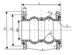
可曲挠橡胶接头结构图示
可曲挠橡胶接头安装参数
nbsp;
注:1、特殊要求可来函来图定制,法兰按《全国通用给排水标准图集》,其它按HG/T2289-92。
nbsp;nbsp;nbsp;nbsp;2、DN32-DN900工作压力为1.0MPa,DN1000-DN2400工作压力为0.6MPa,
nbsp;nbsp;nbsp;nbsp;3、悬空给水使用DN200以上产品,管道必须有固定支撑或固定托架,否则产品应安装防拉脱装置。
nbsp;nbsp;nbsp;nbsp;4、用户使用橡接头,对应法兰应是阀门法兰或符合GB/T9115.1(RF)法兰。
nbsp;
河南郑州zoty中欧·(中国)体育官方网站厂
销售热线:88888888039
地址:
邮箱:88888888